Piso de 3 habitaciones en (Barcelona) en Venta de la nuda propiedad

Datos del inmueble


Referencia: 1266
M2: 106
Habitaciones: 3
Baños: 2
Valor de mercado: 620.000,00€

Datos de los propietarios


Propietario 1: Hombre de 84 años

Descripción del inmueble


🏡 OPORTUNIDAD DE INVERSIÓN EN NUDA PROPIEDAD – CALLE VILLADOMAT (BARCELONA)
El precio de venta del inmueble se ha ajustado significativamente, ofreciendo un descuento del 34,4% sobre su valor de mercado.

📍 Excelente ubicación en el corazón del barrio de l’Antiga Esquerra de l’Eixample, una de las zonas más céntricas, vibrantes y consolidadas de Barcelona. La calle Villadomat ofrece un entorno urbano dinámico y bien comunicado, con todos los servicios a escasos metros: supermercados, centros de salud, colegios, zonas verdes como el Parc de Joan Miró, y una amplia oferta de restauración y comercio local. Cercano a líneas de metro, tren y autobús, y a pocos minutos de Plaça Espanya y Universitat.

El actual propietario, hombre de 84 años, conserva el usufructo vitalicio del inmueble, lo que convierte esta operación en una inversión sólida a largo plazo con potencial de revalorización.

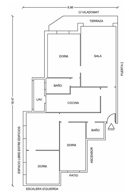
🏠 Descripción del inmueble:
Piso en 6ª planta, exterior y muy luminoso en un edificio de 9 alturas
Superficie construida: 106 m²
Salón, Comedor, Cocina con lavadero adicional, 3 Dormitorios, 2 Baños y Terraza
Distribución funcional con amplias estancias
Edificio clásico del Eixample con ascensor
Finca bien conservada y con buen mantenimiento

Gastos IBI 892€/año
Gastos comunidad 127€/mes

💼 Ideal para inversores patrimoniales que buscan estabilidad, ubicación prime y alta proyección de valor en una de las zonas más atractivas de Barcelona

Documentos asociados al inmueble


Venta de la nuda propiedad

Precio de venta -19%

500.000€

Verificado by Jubenial

Valor de mercado: 620.000€

TIR

3,34%

Rent. Anual

3,68%

Rent. Total

24,67%

Informe financiero

TIR: No disponible (Regístrate)

Rentabilidad anualizada: No disponible (Regístrate)

Rentabilidad total: No disponible (Regístrate)


%
%

años
%
Calculadora